首页
关于我们
集团简介
创始人简介
文化理念
荣誉资质
信息中心
铭铉动态
国内动态
国际动态
医疗器械行业标准
技术展示
净化装饰装修材料及配套产品
净化空调系统及配套产品
中央医气供应系统及麻醉废气排放系统
手术部/ICU专用配套设备及产品
净化照明系列产品
贸易产品
喷绘选图
工程案例
合作伙伴
工程展示
人才招聘
人才理念
招聘岗位
联系我们
EN
搜索
首页
关于我们
集团简介
创始人简介
文化理念
荣誉资质
信息中心
铭铉动态
国内动态
国际动态
医疗器械行业标准
技术展示
净化装饰装修材料及配套产品
净化空调系统及配套产品
中央医气供应系统及麻醉废气排放系统
手术部/ICU专用配套设备及产品
净化照明系列产品
贸易产品
喷绘选图
工程案例
合作伙伴
工程展示
人才招聘
人才理念
招聘岗位
联系我们
首页
板材构件与应用
12120型板材构件与应用
12120型板材构件与应用
产品详细描述:
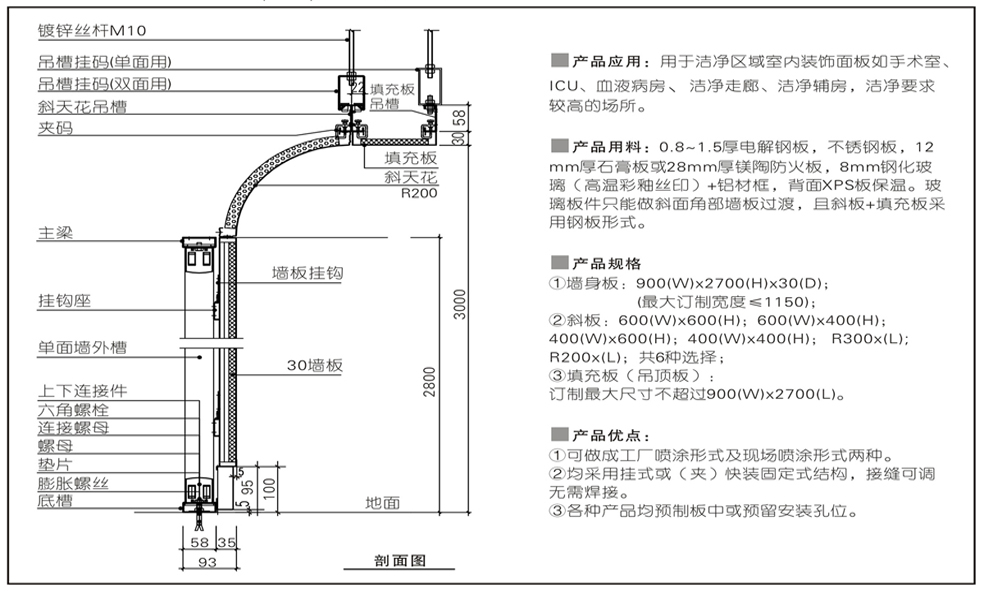
1、产品应用:用于洁净区域室内装饰面板如手术室、ICU、血液病房、洁净走廊、洁净辅房,洁净要求较高的场所。
2、产品用料:0.8~1.5厚电解钢板,不锈钢板,12mm厚石膏板或28mm厚镁陶防火板,8mm钢化玻璃(高温彩釉丝印)+铝材框,背面XPS板保温。玻璃板件只能做斜面角部墙板过渡,且斜板+填充板采用钢板形式。
产品技术参数
产品规格:
①墙身板:900(W)x2700(H)x30(D);
(最大订制宽度≤1150);
②斜板:600(W)x600(H);600(W)x400(H);
400(W)x600(H);400(W)x400(H); R300x(L);
R200x(L);共6种选择;
③填充板(吊顶板):
订制最大尺寸不超过900(W)x2700(L)。
简介
产品
案例
美图
新闻
EN